Открытая каминная топка Астов Astov с сеткой О1С 65\50
554083329bc6
Доставка в Казань
Удобство оплаты
Почему звонить в Очаг уже сейчас?
- Единая цена по всей России
- Бесплатная доставка
- Понимаем любой бюджет
- Считаем ВСЕ варианты
- Инструкции и видео для Монтажа
- Доступно, Оперативно, Профессионально
- Более 2 000 монтажей за 17 лет
Примеры работ #Степан_Знает
Видео галерея
Характеристики
Общие
Производитель:
Страна-производитель:
Россия
Остекление:
Открытая топка
Материал корпуса:
Материал топки:
- Шамот
Конструкция топки:
Стекло с подъемом вверх:
Да
Размеры
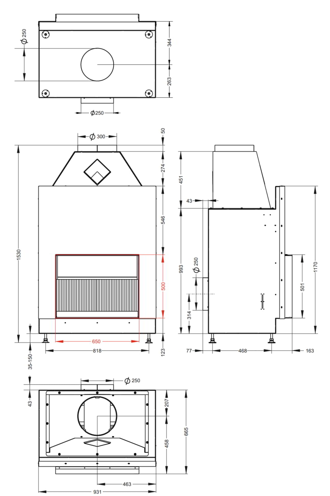
Диаметр дымохода:
300 мм
Общая ширина:
931 мм
Общая глубина:
708 мм
Общая высота:
1530 мм
Высота рамки:
500 мм
Ширина рамки:
650 мм
Производительность
Использование для отопления:












